Jump to content

wavesurfer77

Gjest
  • Posts

    2
  • Joined

  • Last visited

Medlemsinfo

  • Bosted
    Ålesund
  • Medlemskort
    Kun digitalt

wavesurfer77's Achievements

Trehjulssykkel

Trehjulssykkel (1/6)

  1. Tack. Jag har nu skaffat en brukt parkeringsbremsemodul och installerat den. Når den er installerat så førsvinner varning "utfør handbrems service". Dock så har jga inte "gift" modulen min med bilen så det blinkar førtfarande en rød vanings lampa. Hur gifter jag modulem med bilen? Må jag till Ford verkstad før detta? Vidare problem, bakbrems skifte. Då det går ikke å sette bilen i handbrems service modus. Service mode activation (EPB off) Release the parking brake Switch ignition ON (pos 2) Press and hold down throttle pedal Press and hold down the parking brake switch Switch ignition Off (pos 0) Switch ignition ON (pos 2) within 5 seconds When the parking brake has fully actuated (off) switch ignition OFF (pos 0) Release throttle pedal Release parking brake switch Dette veriker ikke! Går det att "override" brems motorn med 12 V rätt på brems motrn?. Har noen testat detta? Kan det blir några problem med å installera nya skivor och klossar bak samtdigt som jag testar "trixet" over med manual override ?
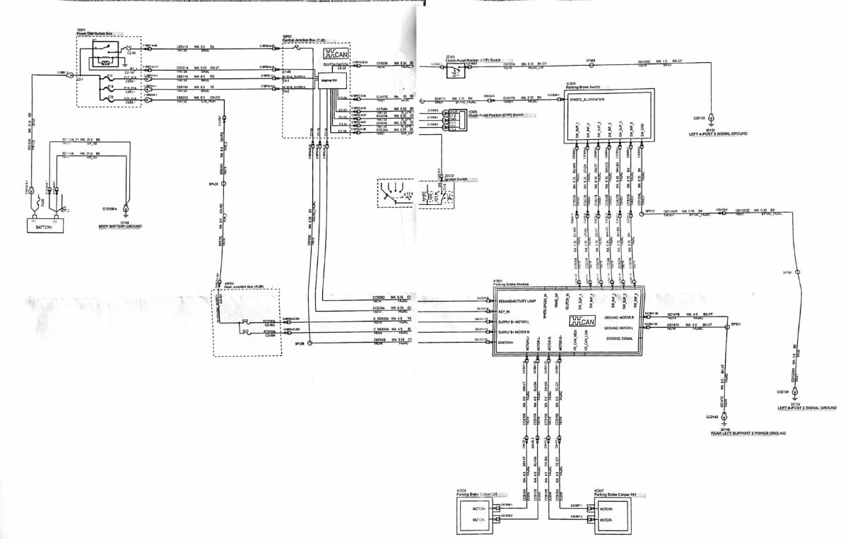
  2. Hei Jeg har en Ford S-Max som viser blinkende parkeringsbremselys og bremsesymbol når bilen kjøres. Videre er det vanskelig å få parkeringsbremsen/håndbremsen til å fungere. Ford Service på Auto 8.8 melder: "Elektronisk pakrbrems sjekket feilkoder og utført nettverkstest. Ikke kommunickation med perkbremsmodul. Målt spenning og det får den. Målt Can-bus forbindeles till modul -53ohm. Dette tyder på at Can er ok frem til modul. Mistenker derfor defekt perkbremsmodul. Feilkoder: U0128:002F-BCMii : Lost communication with park brake control module U0417:68-2B-IPC: Invalid data recived from park brake control module " Nå til spørsmålet mitt. Har noen av dere hatt lignende problemer? Hvor er parkeringsbremsemodulen plassert i bilen? Hvordan ser det ut? Kan du endre det selv? Ford vil ha 12.000 SEK før jobben, men dette kan kanskje gjøres selv?
×
×
  • Create New...